Currently under construction, a pair of semi-detached homes in Chickerell, Weymouth.
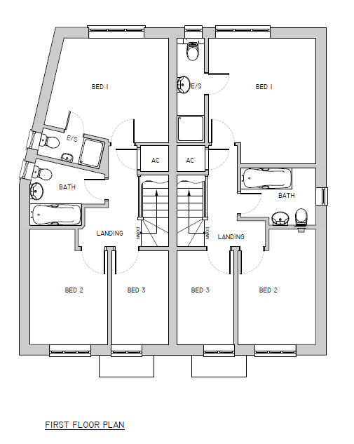
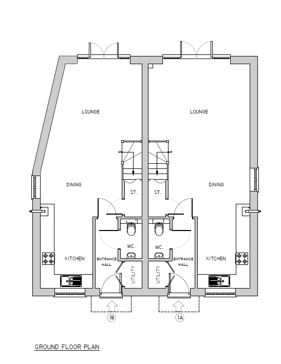
Each property features a spacious open-plan kitchen/dining and family room, complemented by a cloakroom and utility area on the ground floor. Upstairs, there are three well-proportioned bedrooms and two modern bathrooms. Ideally located, these homes provide a perfect base for enjoying the beautiful Dorset countryside and nearby coastal attractions.
Completion expected late 2025, enquiries welcome.

